
مالک خانه پس از سالها زندگی در یک آپارتمان بلندمرتبه و لوکس، اکنون پا به سن گذاشته، خاطرات زیادی دارد و بیش از خدمات رفاهی، به ارتباطات خانوادگی و همسایگی نیاز دارد. به همین دلیل، او به محله قدیمیای که قبلاً در آن زندگی میکرد بازگشته، زمینی خریده و خانهای ساخته تا بتواند در کنار خواهر و برادران مسناش که تنها زندگی میکنند، زندگی کند.
طراحی این خانه بر اساس نیازهای کاربردی و داخلی انجام شده تا پاسخگوی نیازهای فیزیکی مالک باشد. اما از آنجا که مالک مسن است و نیازهای روحی بالایی دارد، تمرکز طراحی بر تجربهی فضا و نور بوده است تا او بتواند بهوضوح با واقعیت ارتباط برقرار کرده و به درون خود سفر کند.
اگه خواستی برای کپشن اینستاگرام یا ویدیو کوتاه یه نسخه خلاصهتر و جذابتر هم میتونم برات بنویسم. دوست داری؟




ایستاده در میان یک جنگل باشکوه با صخرههایی بلند، دو صخرهی نزدیک به هم شکافی از نور ایجاد میکنند؛ گویی فضا به درون آن شکاف کشیده میشود. نگاه انسان همواره با کنجکاوی به سوی آن نور دوخته میشود و پرسشهایی در ذهنش شکل میگیرد؛ پرسشهایی دربارهی هستی انسان.
هستی کوچک و کوتاهمدت انسان در برابر جریان عظیم فضا و زمان.
اگه بخوای حس شاعرانه یا عمیقتری به متن بدیم برای مخاطب معماری یا فلسفهدوست، میتونم یه نسخه ادبیتر هم برات بنویسم. دوست داری اونم داشته باشی؟




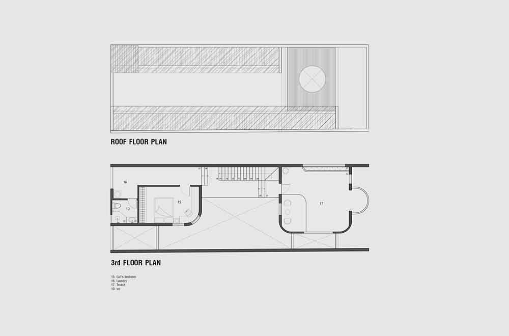
خانه یک حجم مستطیلی توخالی است. درون آن، دو حجم استوانهای در جلو و عقب قرار گرفتهاند که سقف را نگه میدارند. این عناصر با دو شکاف نور و باد که در دو طرف خانه طراحی شدهاند، ترکیب شدهاند. دیوارها و بلوکهای استوانهای، شکافهایی برای عبور نور ایجاد میکنند. نور از طریق این شکافها وارد فضای داخلی خانه میشود و بر روی دو حجم استوانهای میتابد.
فضا به نظر میرسد که در امتداد این بلوکها خمیده شده و به درون شکافهای نوری کشیده میشود، سپس به صورت پرتوهای نور به فضای داخلی بازمیگردد؛ پرتوهایی که احساساتی از شور، شوق و امید را در ذهن زنده میکنند—مانند نوری که در انتهای یک تونل تاریک دیده میشود.
اگه بخوای متنها برای یک کاتالوگ معماری یا روایت ویدیویی استفاده بشن، میتونم بازنویسیشون کنم تا روانتر یا تاثیرگذارتر باشن. دوست داری توی چه فضایی استفادهشون کنی؟

شکاف نور همچنین بهعنوان مسیری برای عبور باد عمل میکند. درهای تاشوی جلو و عقب بهصورت قابل تنظیم طراحی شدهاند تا امکان باز و بسته شدن فعال را فراهم کنند و تهویه طبیعی ساختمان را بهخوبی مدیریت نمایند.
طراحی داخلی بسیار ساده و در امتداد دیوارها پنهان شده است تا فضا و نور مجال حضور بیشتری داشته باشند. این امر به ساکن خانه کمک میکند تا واقعیت را با وضوح بیشتری تجربه کرده و ارزش زندگی، وجود خود و عزیزانش را در سالهای پایانی عمر، بهتر درک کند.
اگه بخوای اینا رو برای نریشن ویدیو معماری استفاده کنی، میتونم برات یه نسخه لطیف و احساسی هم تنظیم کنم که با تصویر هماهنگ باشه. میخوای اونم داشته باشی؟
کیوسکدیا تنها برگزارکننده رسمی دوره های تیف استرالیا TAFE و PDA کانادا در ایران با هدف ورود به بازار کار ایران و خارج ایران و ارائه سرتیفیکیت بین المللی از کانادا و استرالیا می باشد. در این دوره های پروژه محور از صفر تا صد و بدون پیش نیاز و کاملا بر اساس بازار کار آموزش می بینید و در طول دوره یک پروژه طراحی داخلی را زیر نظر اساتید بین المللی طراحی میکنید.
دوره های آنلاین آکادمی بین المللی کیوسکدیا شامل:
دوره طراحی داخلی ، دوره دکوراسیون داخلی و دوره دکوراتوری ، دوره بازسازی ، دوره نورپردازی ، دوره طراحی نما ، دوره طراحی فضای سبز ، دوره نرم افزارهای معماری و طراحی ، دوره شرکت در مسابقات بین المللی
برای دریافت اطلاعات بیشتر و ثبت نام در دوره آنلاین طراحی داخلی و آموزش آنلاین طراحی داخلی و دریافت گواهینامه بین المللی طراحی داخلی بر روی لینک زیر کلیک کنید:
پیج اینستاگرام آکادمی بین المللی کیوسکدیا :
شماره تماس برای ثبت نام و اطلاعات بیشتر:
09107300818
برگرفته شده از وبسایت Archdaily